
Clientes: Sr. Lorel Vithal y Daren Vithal
Tipo : vivienda de 73 m2 con 3 dormitorios, 1 baño
Ubicación: Peris I Valero 122
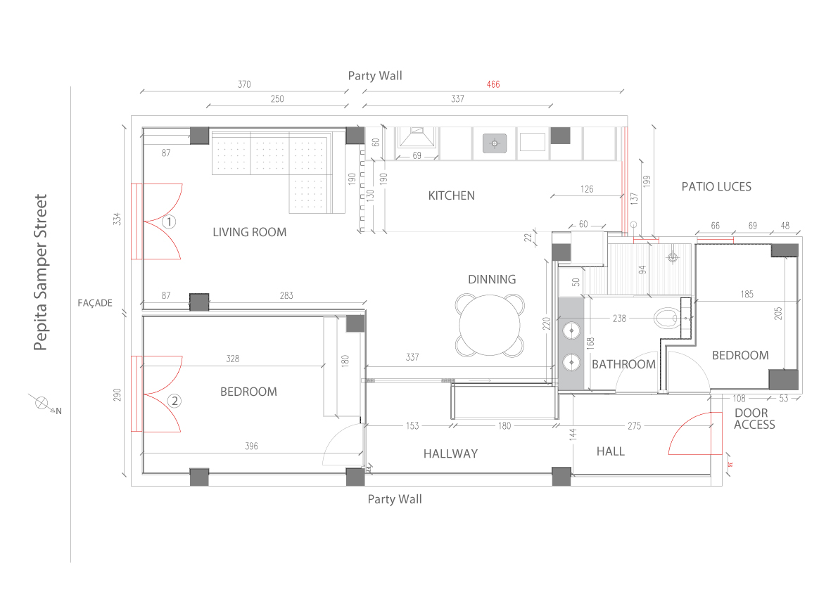
Problema inicial: Tenía una habitación sin ventilación, un solo baño de 2m2, la cocina era oscura y había mucha area de pasillo. No se vendía.
Solución aplicada: Al integrar la cocina y el salón, los espacios se aprovecharon al máximo sin area de circulación, parte de la habitación interior se cedió al baño y el piso ahora tiene espacio de almacenamiento y amplia cocina.
Resultado: Se vendió rápidamente con un incremento en el precio de casi 50.000 €. Transformación integral de una vivienda antigua en un espacio moderno y luminoso. Se optimizó la distribución para mejorar la entrada de luz natural y se utilizaron materiales neutros para ampliar visualmente el espacio.







Leave a comment